
The Facility
Located in the heart of the West Bank, serving the larger Gulf Coast region.
The Southeastern LA Regional Aquatics Center is a proposed regional-level pool complex located within the redeveloped Hope Haven site on the west bank of Jefferson Parish. The development of the Natatorium is part of the Parish’s larger efforts to redevelop the Hope Haven site, a shuttered facility of the Archdiocese of New Orleans, back into service of the people of Jefferson Parish.
The Aquatics Center will be the anchor of the redevelopment of the 100-year-old historic Hope Haven campus on the West Bank of Jefferson Parish. The project’s public, private, non-profit partnership model brings together many sectors of the Parish for the common good. With leadership from Jefferson Parish Councilman Deano Bonano and Louisiana State Senator Pat Connick, the Parish is working hand in hand with the Archdiocese of New Orleans, the Jefferson Community Foundation, the YMCA of Greater New Orleans, and the wider community to develop the west side of the Hope Haven campus along Barataria Boulevard.
Virtual Tour of the Aquatics Center

A state-of-the-art facility in our backyard.
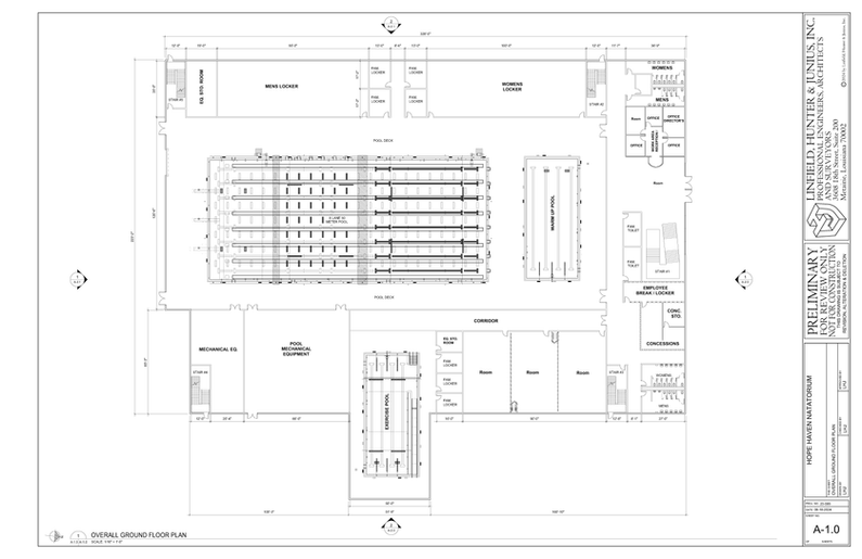
The Aquatics Center is envisioned as a 72,675 square foot regional level competition and recreation aquatics facility. The indoor aquatics facility will feature 3 separate pools: an 8 lane 50-meter Olympic-sized competition pool, a 4 lane 25-yard warm-up pool, and a 25-meter exercise and lap pool. An indoor facility ensures that a wide variety of programming opportunities can take place simultaneously and year-round, no matter the weather.
The Aquatics Center will be complete with elevated spectator seating for 1,500 guests, a scorer’s office for swim meet officials with panoramic views of the competition pool, lockers for competitors, and food and beverage services for the public.

Rendering of the Aquatics Center
Planned Amenities
50 Meter Competition Pool
Olympic sized for competitive swimming tournaments and swim meets.
1,500 Spectator Seats
Stadium-style seating ensures all guests have a view of the competition pool.
25 Meter Warm-Up Pool
Four lanes allow swimmers to practice and warm up while competition is underway.
Locker Room Facilities
Changing areas, showers, and restrooms are available for all swimmers.
25 Meter Fitness Pool
Hosts lap swimming, fitness classes, and lessons for swimmers of all abilities.
On-site Concessions
Food and drinks are available for hungry swimmers and their fans.
Architectural Renderings









